Workforce Development
In This Section
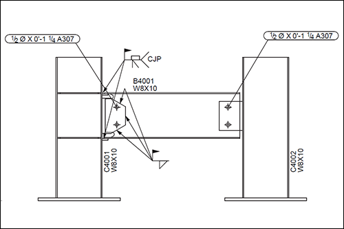
WUF-W + Shear Tab Beam to Column Connections Activity
Compared pinned and fixed connections by leading participants through the fabrication and erection of different beam connections.

Compared pinned and fixed connections by leading participants through the fabrication and erection of different beam connections.
