Workforce Development
In This Section
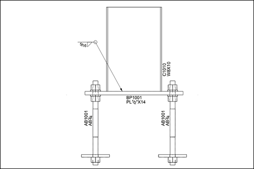
Column Base Plate Activity
Provide participants with a hands-on learning opportunity about steel construction by connecting a column to a base plate.

Provide participants with a hands-on learning opportunity about steel construction by connecting a column to a base plate.
